LNG ISO Tank Container
An LNG ISO Tank Container is a tank container built according to the ISO standard (International Organisation for Standardization) and used to transport various liquids and gases.
The LNG ISO tanks are made of stainless steel and have multi-layered vacuum-insulated pressure tanks supported by double-walled transport tanks.
It holds LNG at temperatures of -162 °C (-260 °F), and The maximum pressure level of an LNG ISO tank container is 0.690 MPa.
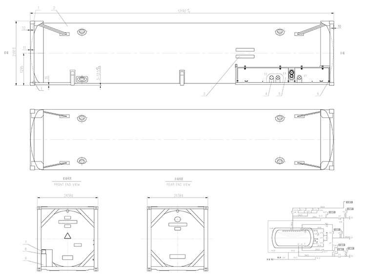
SPECIFICATION NO. : 1AA-TCASG-45.7/7.9
DESCRIPTION : ASME Standard 45700 LITRES T75 UN PORTABLE TANK(40’ LNG ISO TANK CONTAINER)
This tank can also accept cryogenic transfer pumps with road, rail and sea transport approvals.
The T75 cryogenic vessel has been designed and manufactured as an ISO-standard 40-foot Container for the safe storage and transport of Liquefied Natural Gas (LNG).
A cryogenic tank inspection assesses the structural integrity of intermodal containers based on the International Organization for Standardization (ISO) and Convention for Safe Containers (CSC) requirements.
Inner vessels are made of austenitic stainless steel and cold stretched for selected medium / high-pressure models.
The cryo equipment is with working pressures ranging from 100psi to 10 Bar and can be used for the safe transport of LNG.
T75 LNG container tank is suitable for your Cryogenic gas transportation needs.

LNG Cryogenic Tank Containers for 20ft and 40ft
Function and Design
Superior Design & Engineering for High Efficiency
LNG cryogenic tank containers are designed to maintain LNG at temperatures as low as -162°C (-259°F).
The tanks are double-walled with an inner vessel made of stainless steel to ensure durability and insulation.
The outer shell is typically made of carbon steel to provide structural support.
Between these layers is a vacuum space filled with insulation materials like perlite or super-insulation to minimize heat transfer and keep the LNG in its liquid state.

Regulatory Compliance for ISO Tank Containers
Cryogenic ISO tanks must adhere to stringent international standards to ensure safety, reliability, and performance during transport and storage. These standards are set by various organizations, including the International Maritime Organization (IMO) and the International Organization for Standardization (ISO).
DSW’s Product Certifications:
- RID/ADR: Regulations concerning the International Carriage of Dangerous Goods by Rail and Road.
- CFR49: Code of Federal Regulations for transporting hazardous materials in the U.S.
- IMDG: International Maritime Dangerous Goods Code.
- T75 UN Portable: UN Portable Tank standards for cryogenic liquids.
- TIR: Customs Convention on the International Transport of Goods.
- UIC: International Union of Railways standards.
- CSC: International Convention for Safe Containers.
- TC: Transport Canada regulations.
- US DOT: United States Department of Transportation standards.
- UK-DFT: United Kingdom Department for Transport regulations.
- FRA: Federal Railroad Administration standards.
These certifications ensure that DSW’s cryogenic tank containers meet global safety and quality requirements, making them suitable for various international transport and storage applications.



The 20M3 Cryogenic ISO Tank is designed to temporarily store cryogenic liquefied gases under pressure.













